|

download a file
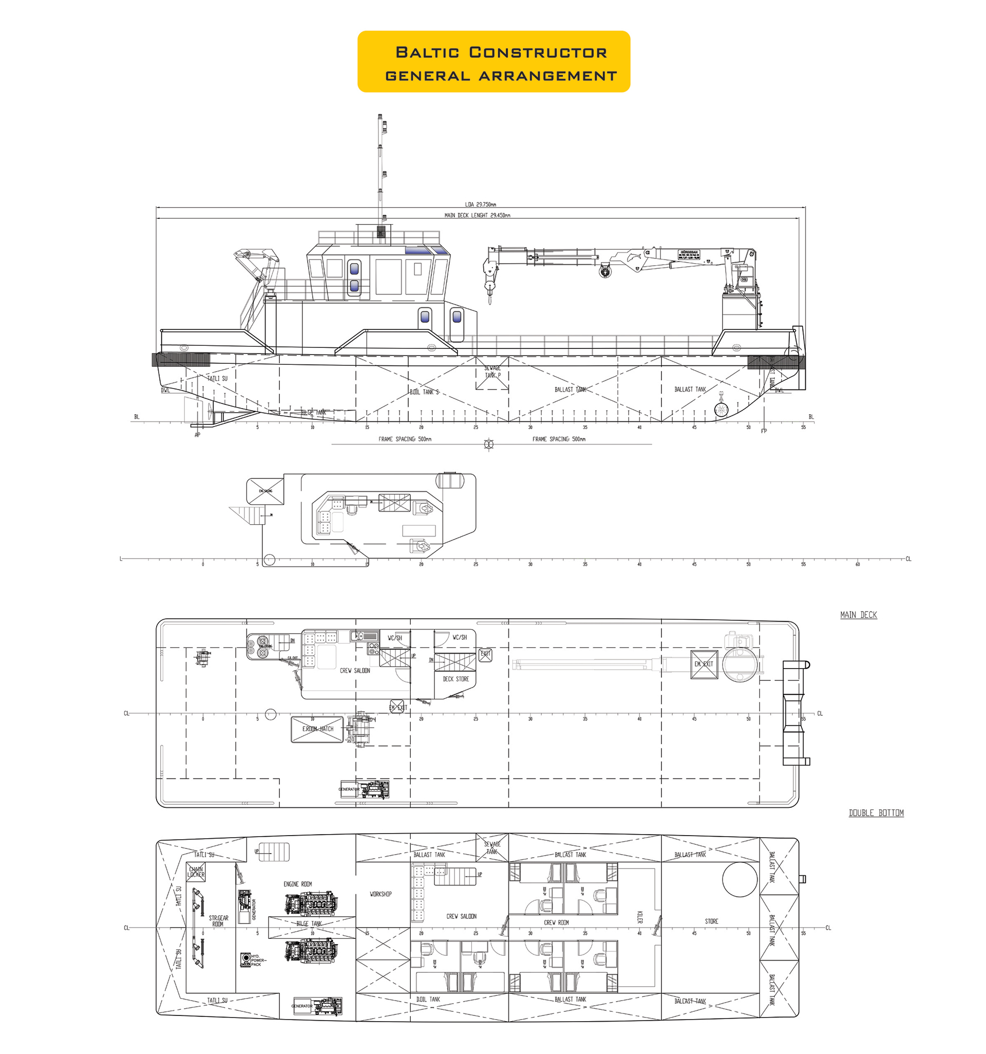
Type of Vessel Multicat
Classification/Flag Flag: Polish Class: RINA Call Sign/MMSI: SNOP/261007303 Trading area: 60 Nm offshore Build: 1992 Converted: 2020 Ship type: Multicat Maximum speed: 9,7 kn LOA: 29,45m Beam: 8,64m Draft: 2m Bow thruster: 80 kVa 600mm propeller Engines: 2x Volvo Penta 340HP Generators: 1xVolvo Penta 250 kVa, 1xDetroid 90kVa Deck generator: Katana 110 Kva Fuel consumption: 90l/h
|
Assignments: Large Multicat converted in 2020 from a keel laid in 1992 able to cover wide range of marine operations – equipment transfer, diving and ROV support, crane operations, civils engineering support, geotechnical surveys, navigational and metaocean buoys deployment, repairs of cables and pipelines, debris and removal, salvage ect.
Crew Minimum: 12/24h: 3/5 Maximum: 16 persons Rescue equipment: SOLAS 16 persons Accommodation: 2 single, 4 double cabins
Deck Equipment Hidrokon HK165 crane 31T/5,41m-4,45T/23,51m Palfinger PK 23500M 5,4T/4,20m-0,6T/18,5m Deck Winch - National Oilwell - 20T Capstan Winch - Aras hydraulic 10T Bow roller: 2m with at 800mm diameter Towing hook - 10t bollard pull Anchor winch: Aras Hydraulic Working deck area: 160m2
|